Search
Winslow Drive, Wigston, Leicester
  • In Excess of £295,000

Description

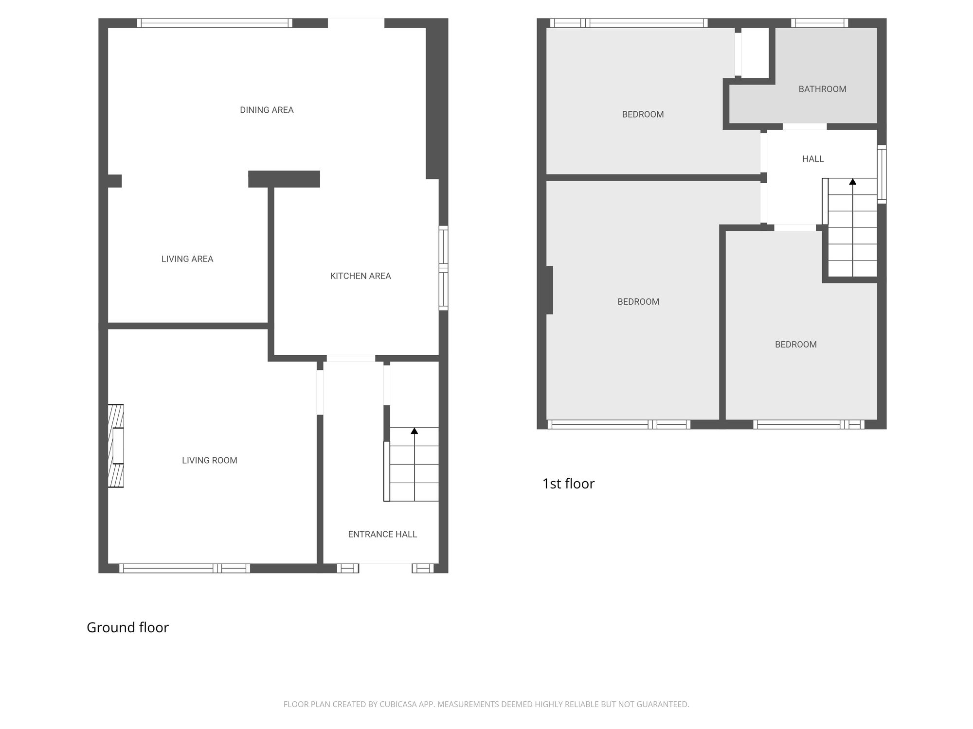
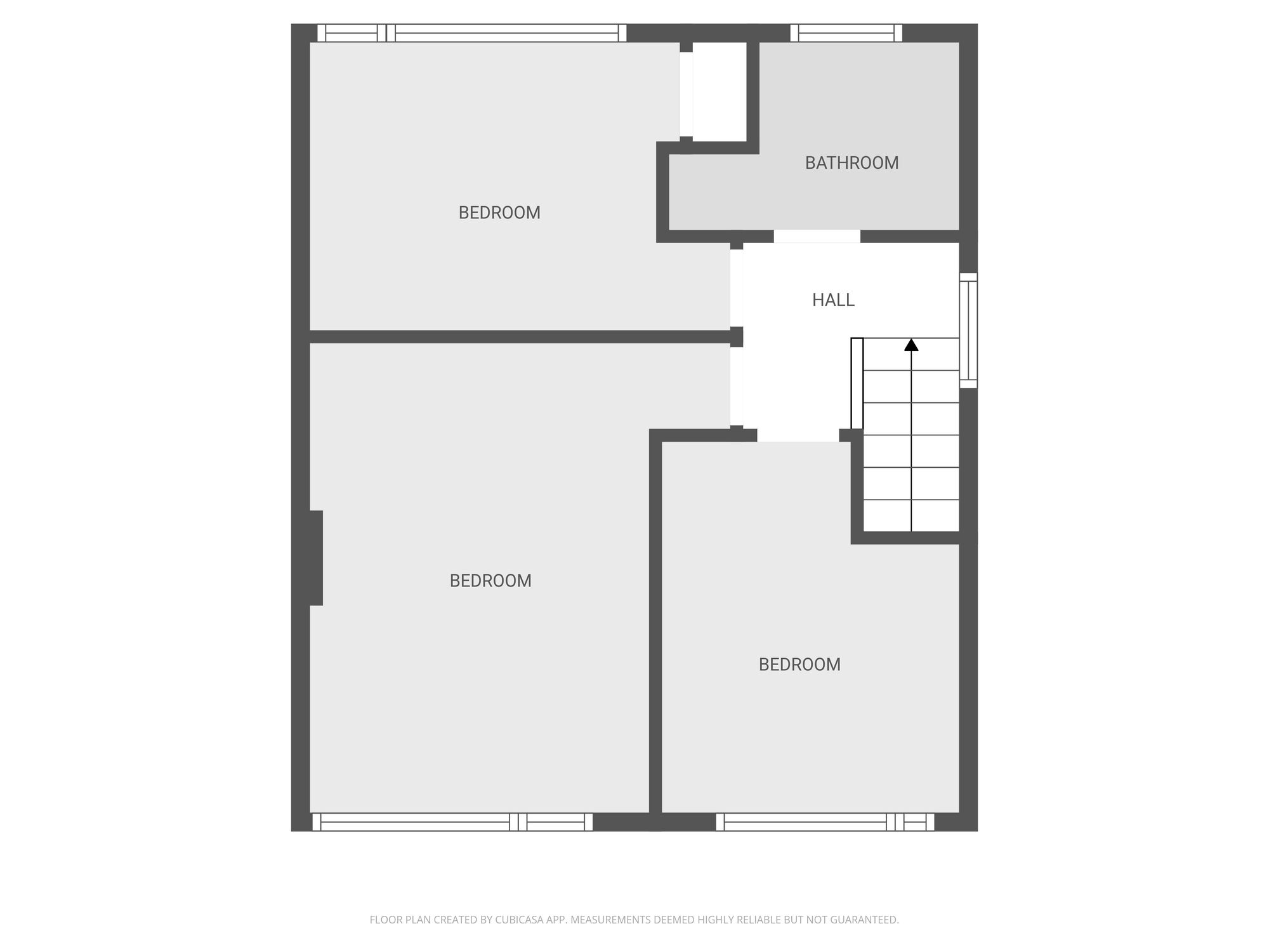
Situated on Winslow Drive in Wigston, this three-bedroom semi-detached property offers well-proportioned accommodation across two floors, with driveway parking, a garage and a mature rear garden.

The property is entered via a double-glazed door into the entrance hall, featuring ceramic tiled flooring, a radiator and stairs rising to the first floor.

To the front of the property is the living room, with a double-glazed window, stained wooden flooring and a chimney breast incorporating a living flame gas fire.

Read More

Property Documents

  • Address: Winslow Drive
  • Post Code: LE18 3QG

Details

Updated on March 3, 2026 at 5:21 pm
  • Price In Excess of £295,000
  • Property Size 82 Sq Mt
  • Bedrooms 3
  • Room 1
  • Bathroom 1
  • Garages Driveway, Garage
  • Property Status For Sale

360° Virtual Tour

Floor Plans

Video

Overview

  • 3
  • Bedrooms
  • 1
  • Bathroom
  • Driveway, Garage
  • Garages
  • 82 Sq Mt
  • Area Size

Mortgage Calculator

Energy Class

  • Energetic class: D
  • EPC Current Rating: 67.0
  • EPC Potential Rating: 73.0
  • A+
  • A
  • B
  • C
  • | Energy class D
    D
  • E
  • F
  • G
  • H

Contact Information

View Listings
Knightsbridge Estates

Enquire About This Property

Similar Listings

Compare listings

Compare