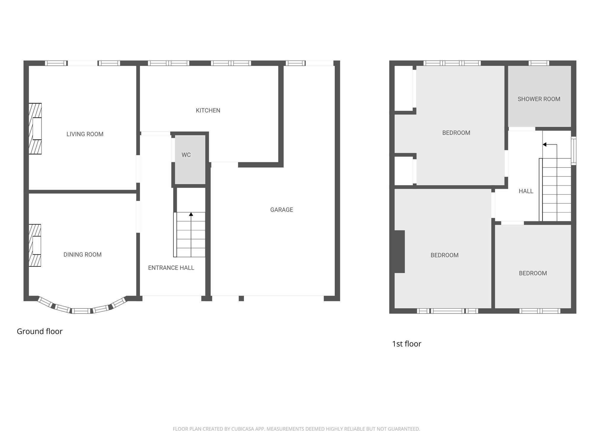
Located on Gainsborough Road in Knighton, this three-bedroom semi-detached home offers well-proportioned accommodation across two floors, along with a driveway, garage and established rear garden.
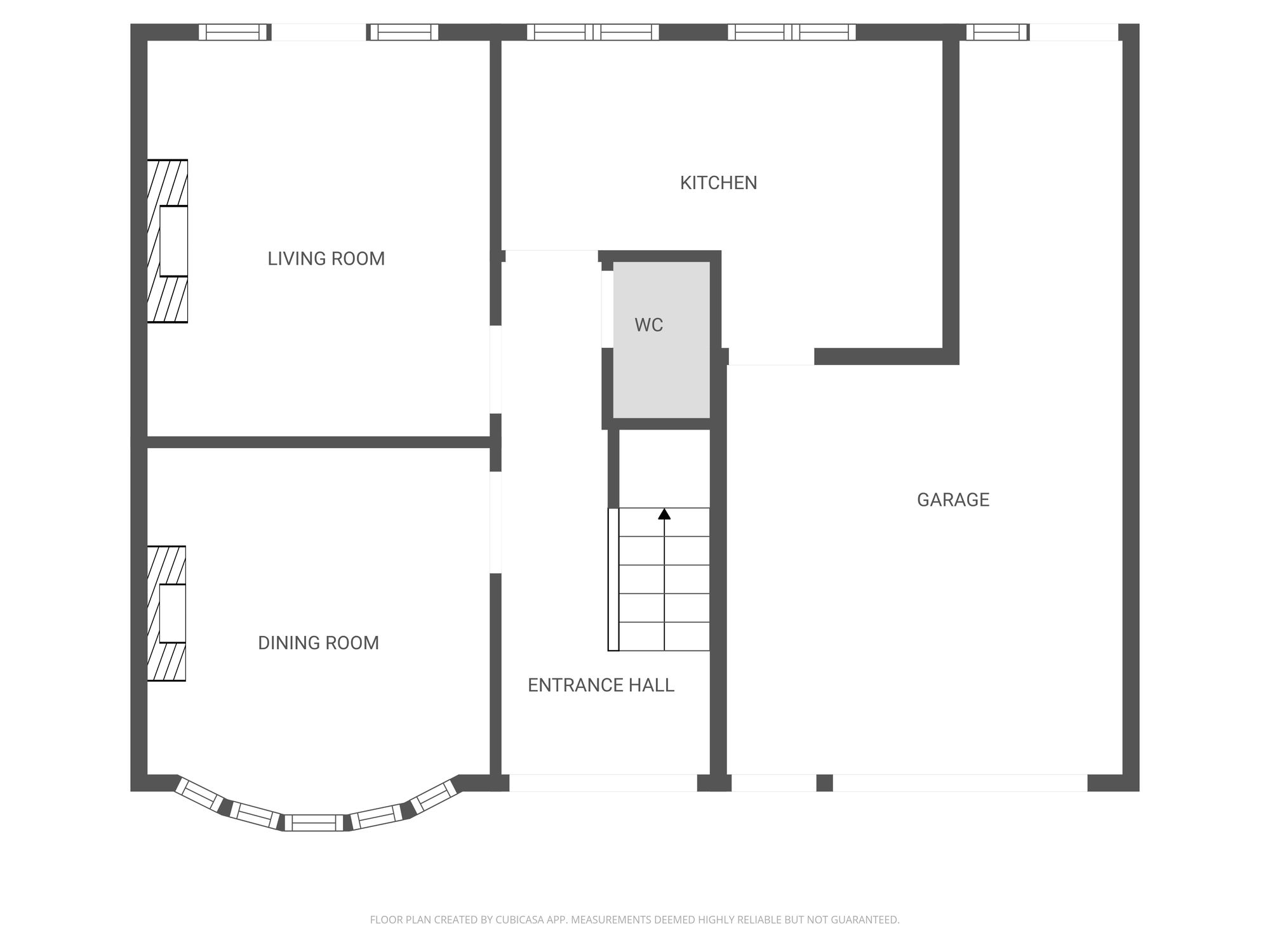
The entrance hall provides access to the first floor and includes laminate flooring and useful under-stairs storage. There is also a ground-floor WC fitted with a low-level WC and wash hand basin.
To the front of the property, the dining room features a double-glazed bay window and a period-style fireplace with tiled insert and surround. To the rear, the living room includes an open fireplace and a door leading directly to the garden.
The kitchen is positioned at the rear of the property with two rear-facing windows and an internal door to the garage. It is fitted with a range of wall and base units with work surfaces over, a stainless steel sink and drainer, Rangemaster cooker with chimney hood, a wine rack, plumbing for a washing machine, tiled flooring and a wall-mounted boiler.
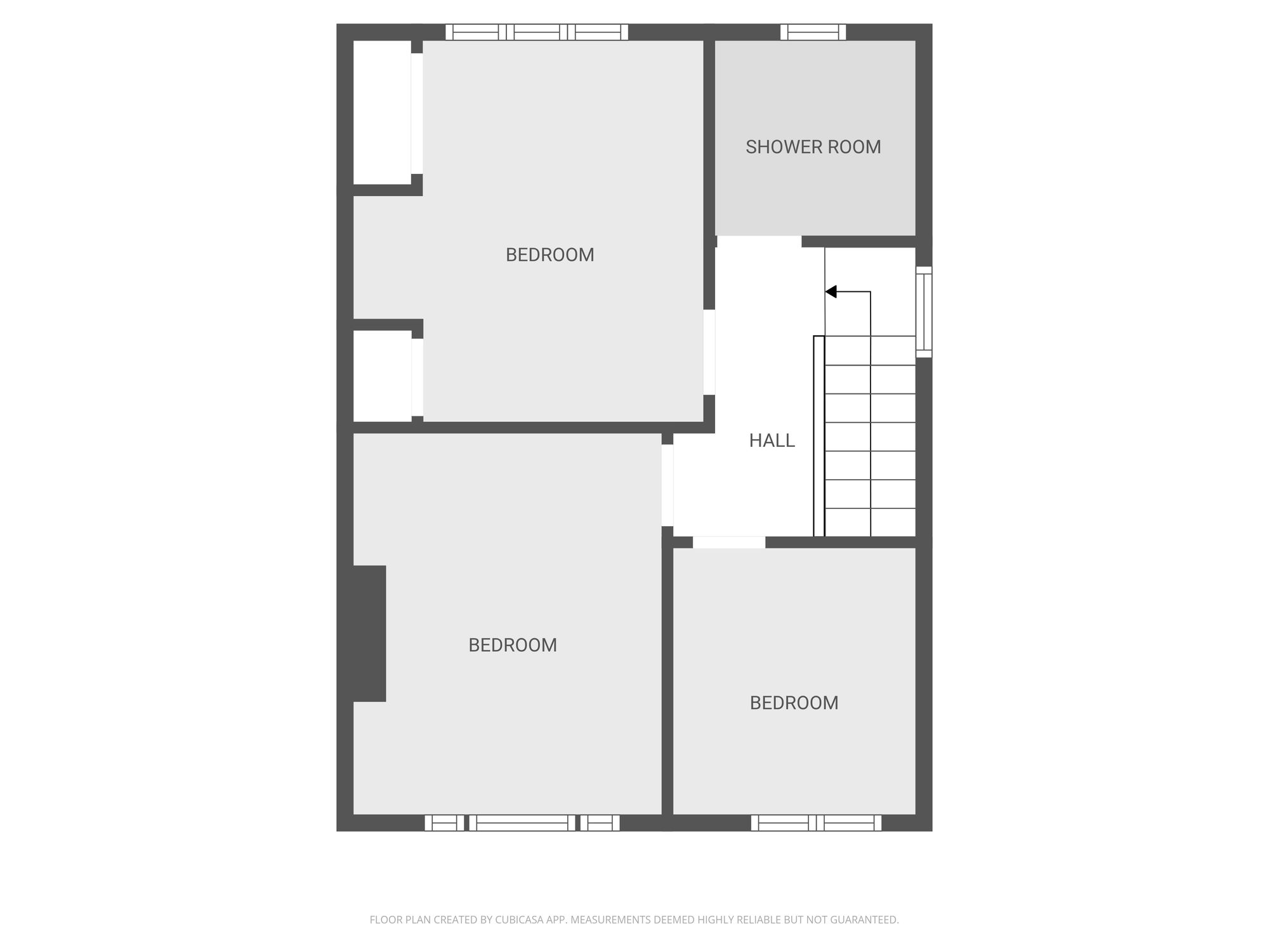
Upstairs, the landing has a side window and provides access to a boarded loft space with power and a rear skylight window.
Bedroom one overlooks the rear and includes fitted wardrobes. Bedroom two and bedroom three are positioned to the front.
The shower room comprises a tiled shower cubicle, pedestal wash hand basin, low-level WC and heated chrome towel rail.
Outside, the front garden is walled with mature shrubs and a lawned area. A driveway leads to the garage, which has power, lighting and a rear access door to the garden.
The rear garden is mainly paved and gravelled with a pergola, raised vegetable beds, greenhouse, shed, outside power point and a variety of established shrubs and trees. The boundary is enclosed by fencing.
Entrance Hall
With stairs to the first floor, laminate flooring, an under-stairs storage cupboard, and a radiator.
Ground Floor WC (6′ 2″ x 2′ 9″ (1.88m x 0.84m))
With a low-level WC, a wash hand basin, tiled flooring, and an extractor fan.
Reception One / Dining Room (14′ 0″ x 11′ 2″ (4.26m x 3.41m))
(into bay and recess). With a double-glazed bay window to the front elevation, period-style fireplace with tiled insert and hearth and fire surround, laminate flooring, and radiator.
Reception Room Two / Living Room (12′ 4″ x 11′ 2″ (3.76m x 3.41m))
With a door to the rear garden, a feature open fireplace with fire surround, TV point, and radiator.
Kitchen (12′ 8″ x 8′ 11″ (3.87m x 2.71m))
With two windows to the rear elevation, internal door to the garage. Includes Rangemaster cooker with chimney hood over, stainless steel sink and drainer unit, range of wall and base units with work surfaces over, plumbing for washing machine, wine rack, tiled flooring, wall-mounted boiler, and radiator.
First Floor Landing
With a window to the side elevation, loft access leading to a boarded loft with power and a skylight window to the rear elevation.
Bedroom One (12′ 6″ x 10′ 4″ (3.80m x 3.15m))
(to chimney breast). with a window to the rear elevation, fitted wardrobes, laminate flooring, and a radiator.
Bedroom Two (11′ 1″ x 10′ 1″ (3.37m x 3.07m))
With a double-glazed window to the front elevation, laminate flooring, and a radiator.
Bedroom Three (7′ 10″ x 7′ 7″ (2.40m x 2.31m))
With a double-glazed window to the front elevation, laminate flooring, and a radiator.
Shower Room (6′ 11″ x 5′ 11″ (2.10m x 1.80m))
With a window to the rear elevation, tiled shower cubicle, pedestal wash hand basin, low-level WC, and heated chrome towel rail.