Search
Brighton Avenue, Wigston, Leicester
  • In Excess of £355,000

Description

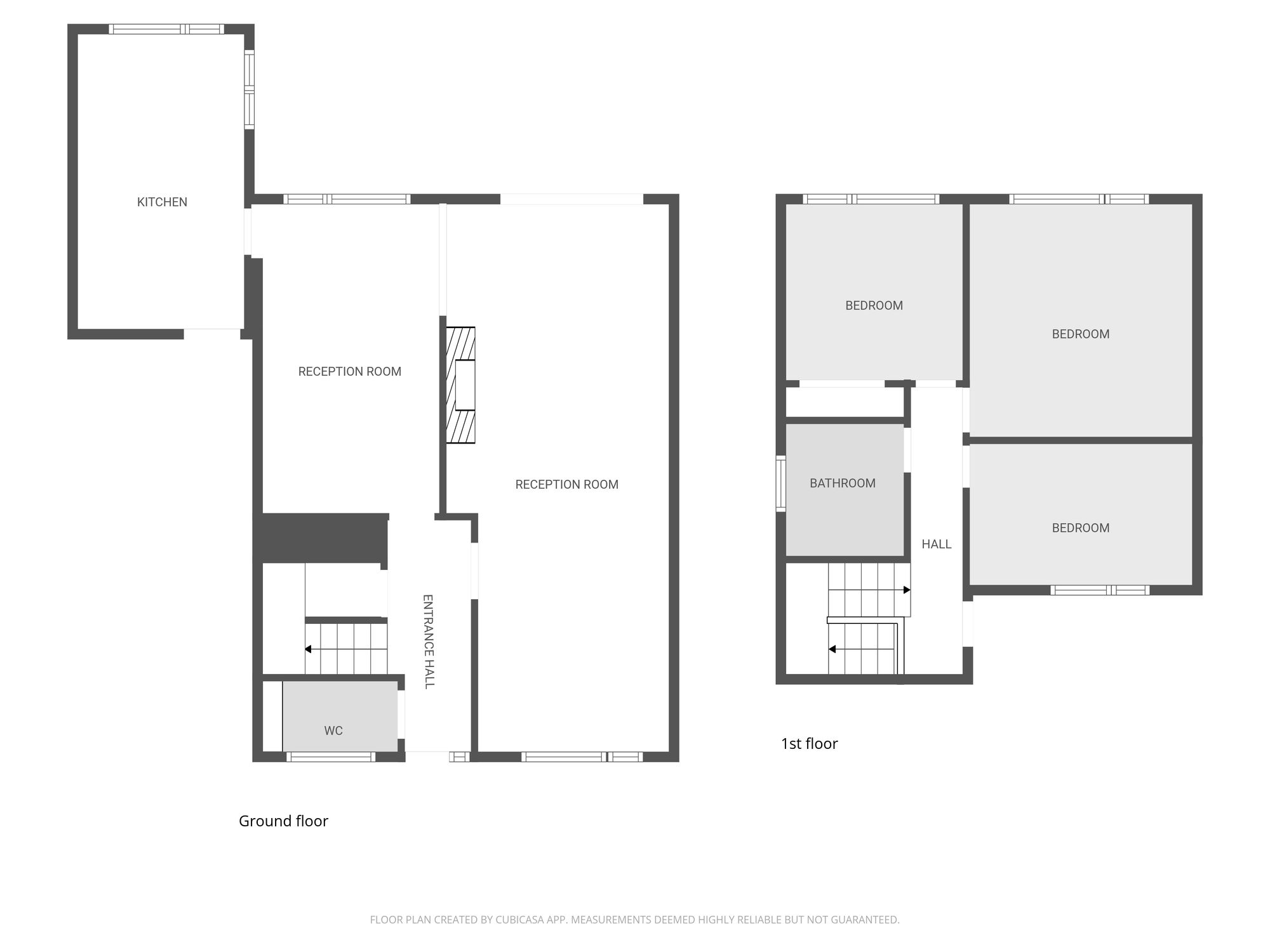
Situated on Brighton Avenue in Wigston, this extended detached property provides well-proportioned accommodation across two floors and offers driveway parking, a garage and established gardens.

The property is entered via a porch with ceramic tiled flooring, leading into the entrance hall with stairs rising to the first floor and useful under-stairs storage. A ground floor WC is positioned to the front of the property.

Read More

Property Documents

  • Address: Brighton Avenue
  • Post Code: LE18 1JB

Details

Updated on March 3, 2026 at 5:21 pm
  • Price In Excess of £355,000
  • Property Size 93 Sq Mt
  • Bedrooms 3
  • Rooms 2
  • Bathroom 1
  • Garages Driveway, Garage
  • Property Status For Sale

360° Virtual Tour

Floor Plans

Video

Overview

  • 3
  • Bedrooms
  • 1
  • Bathroom
  • Driveway, Garage
  • Garages
  • 93 Sq Mt
  • Area Size

Mortgage Calculator

Contact Information

View Listings
Knightsbridge Estates

Enquire About This Property

Similar Listings

Compare listings

Compare