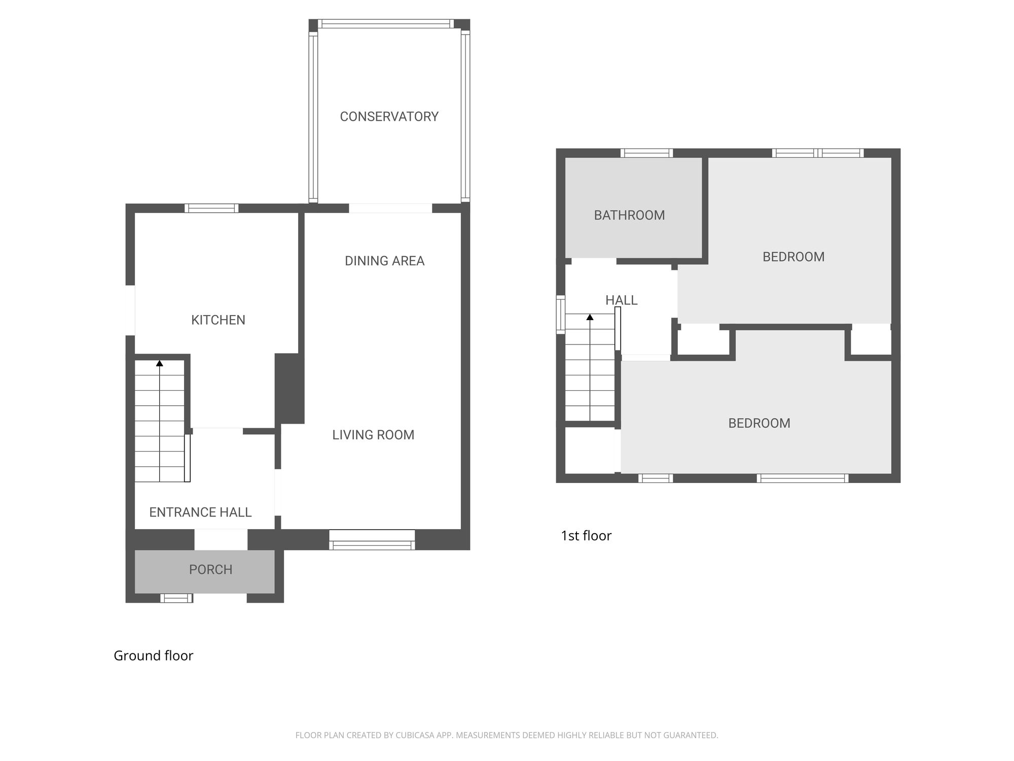
Located within a cul-de-sac position in LE2, this two-bedroom semi-detached home provides well-proportioned accommodation arranged over two floors, together with driveway parking and a good-sized rear garden.
The property is entered via a porch leading into the hallway, where stairs rise to the first-floor landing.
To the front, the living room enjoys a double-glazed window and French doors opening into the conservatory, creating a flexible reception space with direct access to the rear garden.
The kitchen is positioned to the rear and fitted with a range of base and wall units, rolled edge work surfaces, a stainless steel sink and drainer, inset four-ring gas hob, integrated oven and extraction hood. There is plumbing for a washing machine, space for a fridge freezer and a door providing access to the side path and garden.
Upstairs, the first-floor landing gives access to two bedrooms and the bathroom. The principal bedroom benefits from two front-facing windows, while bedroom two overlooks the rear and includes a built-in cupboard. The bathroom is fitted with a bath with a shower over, a low-level WC and a wash hand basin, complemented by fully tiled walls and tiled flooring.
Externally, the rear garden features a decked seating area leading onto a lawn with fenced boundaries. To the front, there is driveway parking for approximately two vehicles.
Porch
Provides access to the hallway.
Hallway
Double-glazed window to the side elevation and stairs to first floor landing.
Living Room (18′ 2″ x 10′ 9″ (5.53m x 3.27m))
(Minimising to 2.81m) Double-glazed window to front elevation, double-glazed French doors to conservatory, television point, and a radiator.
Conservatory (9′ 1″ x 7′ 11″ (2.77m x 2.42m))
Double-glazed windows to the side and rear elevations, and ceramic tiled flooring.
Kitchen (12′ 3″ x 9′ 7″ (3.74m x 2.93m))
Double-glazed window to rear elevation, double-glazed door to side path/garden, ceramic tiled flooring, base and wall units, rolled edge laminated work surfaces, stainless steel sink and drainer, inset four-ring gas hob, integrated oven, extraction hood, plumbing for washing machine, and space for a fridge freezer.
First Floor Landing
Double-glazed window to the side elevation.
Bedroom One (16′ 3″ x 8′ 11″ (4.95m x 2.73m))
Principal bedroom with two double-glazed windows to the front elevation, a television point, and a radiator.
Bedroom Two (11′ 7″ x 8′ 8″ (3.53m x 2.65m))
Double-glazed window to the rear elevation, built-in cupboard, and a radiator.
Bathroom (7′ 3″ x 5′ 7″ (2.22m x 1.69m))
Double-glazed window to rear elevation, ceramic tiled flooring, bath with shower over, low-level WC, wash hand basin, fully tiled walls, and a radiator.