Search
Maple Lane, Wimbish, CB10
  • Guide Price £175,000

Description

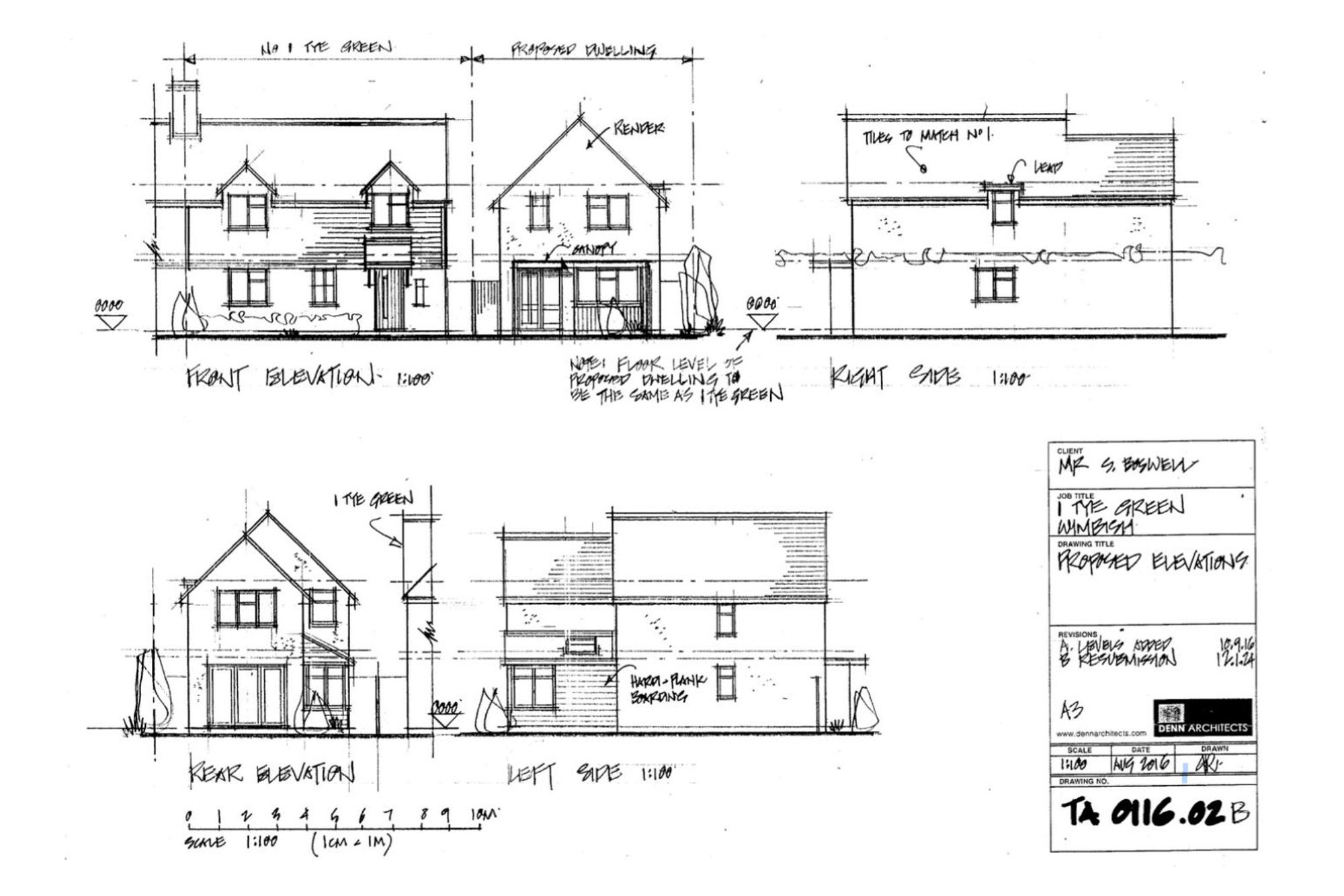
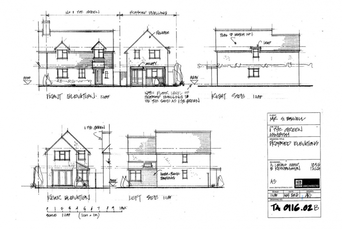
Set within the sought-after hamlet setting of Tye Green, Wimbish, this attractive plot of land presents a superb opportunity to create a bespoke detached village home, with planning permission granted for a thoughtfully designed three-bedroom house of circa 1,300 sq ft.

Enjoying a wonderfully semi-rural position on the edge of open countryside, the plot sits beside existing homes and is framed by established boundaries, including an existing native hedgerow that helps provide a pleasing sense of privacy and a natural backdrop. The design has been carefully considered to complement the surrounding street scene, with a traditional pitched-roof profile, feature canopy/porch detail and well-proportioned elevations.

Read More

  • Address: Land On The North Side Of 1 Tye Green Maple Lane Wimbish CB10 2XE
  • Post Code: CB10 2XE

Details

Updated on February 7, 2026 at 10:00 pm
  • Property ID 131456
  • Price Guide Price £175,000
  • Bedrooms 3
  • Bathrooms 2
  • Property Status For Sale

360° Virtual Tour

Floor Plans

Overview

Property ID: 131456
  • 3
  • Bedrooms
  • 2
  • Bathrooms

Mortgage Calculator

Contact Information

View Listings
Pottrill Holland
  • Pottrill Holland

Enquire About This Property

Similar Listings

Compare listings

Compare