Search
Highfield Drive, Wigston, Leicester
  • Offers Over £290,000

Description

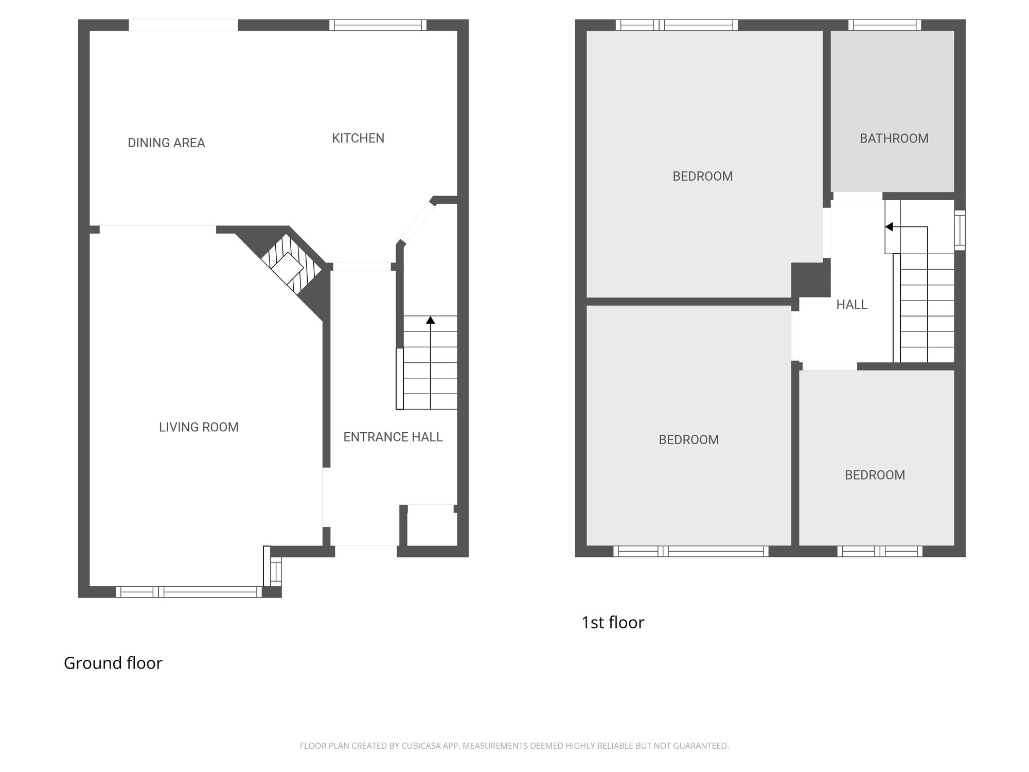
Situated on Highfield Drive in Wigston, this three-bedroom home offers well-presented accommodation across two floors, with driveway parking, a carport and a generous rear garden.

The property is entered via a porch with tiled flooring, leading into the entrance hall which features herringbone-style flooring, part wood-panelled walls, a cloaks cupboard and a traditional-style radiator. Stairs rise to the first floor from here.

Read More

Property Documents

  • Address: Highfield Drive
  • Post Code: LE18 1NP

Details

Updated on March 3, 2026 at 5:21 pm
  • Price Offers Over £290,000
  • Property Size 82 Sq Mt
  • Bedrooms 3
  • Rooms 2
  • Bathroom 1
  • Garages Driveway, Car port
  • Property Status For Sale

360° Virtual Tour

Floor Plans

Video

Overview

  • 3
  • Bedrooms
  • 1
  • Bathroom
  • Driveway, Car port
  • Garages
  • 82 Sq Mt
  • Area Size

Mortgage Calculator

Energy Class

  • Energetic class: C
  • EPC Current Rating: 70.0
  • EPC Potential Rating: 87.0
  • A+
  • A
  • B
  • | Energy class C
    C
  • D
  • E
  • F
  • G
  • H

Contact Information

View Listings
Knightsbridge Estates

Enquire About This Property

Similar Listings

Compare listings

Compare